
鞏義市仁源水處理材料廠
聯系人:孫經理
手機:15838253283(微信同號)
電話:0371-66557686
郵箱:1813885391@qq.com
地址:河南省鞏義市工業園區
板框聚合氯化鋁PAC生產廠家雷神山醫院污水處理設計出爐!
板框聚合氯化鋁PAC廠家雷神山醫院污水處理設計出爐!武漢市新型肺炎防控指揮部決定,除武漢蔡甸火神山醫院之外,還將半個月之內再建一所“小湯山醫院”——武漢雷神山醫院!
工程由中建三局一公司牽頭實施,并負責醫療隔離區施工,中建三局基建投公司負責醫護住宿區施工,中建三局綠投公司負責醫療污水處理設施安裝等相關施工。
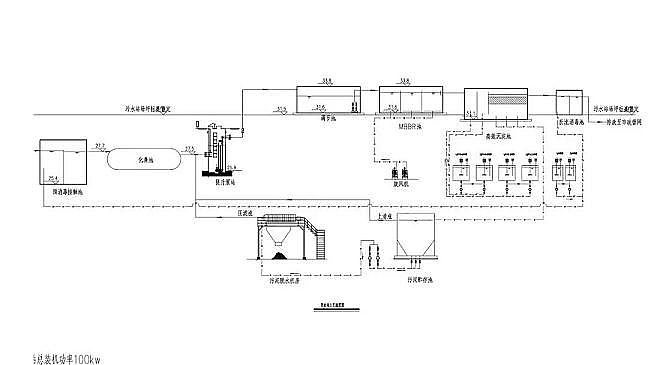
雷神山醫院污水處理采用生化處理,如下圖(點擊圖片查看大圖),流程為:接觸消毒-化糞池-調節池-MBBR池-高效沉淀池-消毒-排至市政污水管網!

圖1:雷神山污水處理平面圖

圖2:雷神山污水處理剖面圖